Local commercial 74 m² à louer - 92 rue des Entrepreneurs 75015 Paris
Présentation du local à louer - local commercial
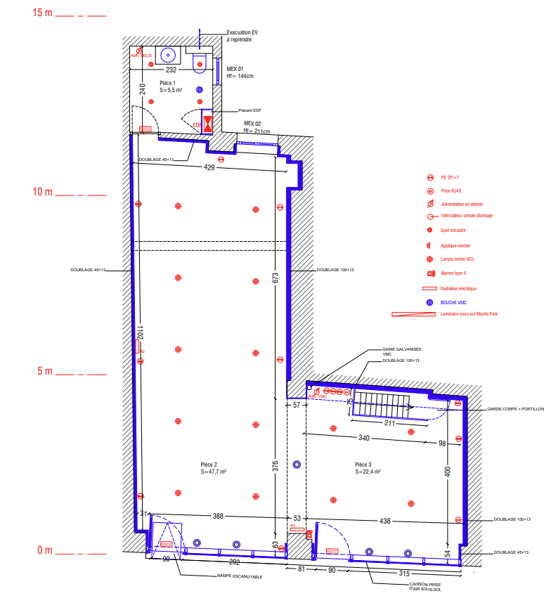
Le local commercial situé au 92 rue des Entrepreneurs, dans le 15ᵉ arrondissement de Paris, bénéficie d’un emplacement privilégié au cœur d’un quartier à la fois résidentiel, commerçant et dynamique. Ce local rénové de 74 m² en rez-de-chaussée, accompagné d’un sous-sol de 16 m², sera disponible à la location à partir de début 2026. Il offre un espace clair et fonctionnel, idéal pour accueillir une activité hors restauration.
Le quartier est très recherché pour son ambiance conviviale et sa forte fréquentation. À proximité immédiate, on retrouve de nombreux commerces de proximité, des enseignes nationales de la rue du Commerce, ainsi que le centre commercial Beaugrenelle, qui attire une clientèle variée et régulière. Les rues voisines accueillent également des cafés, des services et des artisans, participant à la vitalité économique du secteur.
Le local est particulièrement bien desservi par les transports en commun. La station de métro Commerce (ligne 8) se trouve à quelques minutes à pied, tout comme les stations Félix Faure et Avenue Émile Zola. Plusieurs lignes de bus desservent le quartier et permettent de rejoindre facilement le reste de la capitale. L’accès au périphérique est également rapide par la porte de Sèvres ou la porte de Versailles.
Le 15ᵉ arrondissement est un secteur très vivant, apprécié pour sa qualité de vie, ses nombreux établissements scolaires, ses équipements sportifs et ses espaces verts tels que le square Saint-Lambert ou le parc André Citroën. Cette diversité attire une clientèle familiale et fidèle, propice au développement d’une activité artisanale, de service ou de commerce de proximité.
Ce local constitue donc une belle opportunité pour un commerçant souhaitant s’implanter dans un environnement attractif et stable, au sein d’un quartier parisien dynamique et en constante évolution.
Disponibilité : 01/01/2026
- Activité recherchée :
- Pas de restauration
Documentation complémentaire
Surfaces
- RDC 74 m²
- Sous-sol 16 m²
Caractéristiques techniques du local-
Travaux à la charge du locataire :
Rénové
-
DPE :
vierge
Les informations sur les risques auxquels ce bien est exposé sont disponibles sur le site Géorisques.
Conditions financières et juridiques
- Loyer mensuel : 3 500€ HT/HC
- Loyer annuel : 42 000€ HT/HC
Paiement mensuel à échoir
- Type de bail : Bail commercial
- Taxe foncière : 3 019€ HT
- Provision pour charges : 123€ HT mensuelle
- Dépôt de garantie : 1 mois de loyer HT/HC
- Frais d'acte : 2 000€ HT
- Honoraires annuels de frais de gestion administrative et de maintenance technique : 1.5 % du loyer annuel HT
- TVA : oui
Emplacement
92 rue des Entrepreneurs 75015 Paris
- Métro :
- Commerce (8)
Vous souhaitez être informé des nouvelles annonces
immobilières dès leur mise en ligne ?
Vous n’avez pas trouvé de local pour votre activité parmi les annonces en ligne ?
Présentez-nous votre projet



