Local commercial 69 m² à louer - 27 rue Ordener 75018 Paris
Présentation du local à louer - local commercial
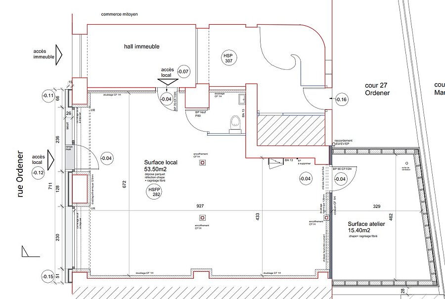
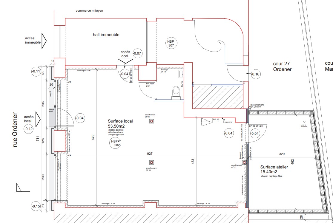
Local commercial totalement rénové situé sur la rue Ordener entre les métros Marcadet Poissonniers et Marx Dormoy d’une surface totale de 69 m².
Le local se compose d’unesurface commerciale principale de 54 m² facilement aménageable et d’un atelier / arrière-boutique de 15 m², idéal pour le stockage, la production ou un espace technique.
Le local bénéficie d'une très bonne visibilité avec une nouvelle devanture et un beau linéaire de façade.
Disponibilité : immédiate
- Activité recherchée :
- Restauration non autorisée
Surfaces
- RDC 69 m²
Caractéristiques techniques du local-
DPE :
Vierge
Les informations sur les risques auxquels ce bien est exposé sont disponibles sur le site Géorisques.
Conditions financières et juridiques
- Loyer mensuel : 1 800€ HT/HC
- Loyer annuel : 21 600€ HT/HC
Paiement mensuel à échoir
- Type de bail : Bail commercial
- Taxe foncière : 0€ HT
- Provision pour charges : 300€ HT mensuelle
- Dépôt de garantie : 1 mois de loyer HT/HC
- Frais d'acte : 1 000€ HT
- TVA : oui
Emplacement
27 rue Ordener 75018 Paris
- Métro :
- Marcadet Poissonniers (ligne 4 et 12)
Vous souhaitez être informé des nouvelles annonces
immobilières dès leur mise en ligne ?
Vous n’avez pas trouvé de local pour votre activité parmi les annonces en ligne ?
Présentez-nous votre projet




