Local commercial 59 m² à louer - 17 rue Marx Dormoy 75018 Paris
Présentation du local à louer - local commercial
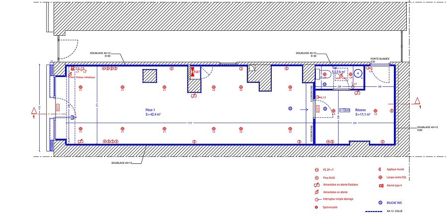
Local commercial totalement rénové d'une surface de 59 m² en rdc situé sur la rue Marx Dormoy, à proximité du métro La Chapelle.
Surface commerciale principale d'environ 43 m² avec une réserve en arrière boutique et des sanitaires.
Le local bénéficie d'une très bonne visibilité avec une nouvelle devanture sur un axe très fréquenté.
Disponibilité : 01/03/2026
- Activité recherchée :
- Restauration non autorisée
Surfaces
- RDC 59 m²
Caractéristiques techniques du local-
DPE :
Vierge
Les informations sur les risques auxquels ce bien est exposé sont disponibles sur le site Géorisques.
Conditions financières et juridiques
- Loyer mensuel : 1 600€ HT/HC
- Loyer annuel : 19 200€ HT/HC
Paiement mensuel à échoir
- Type de bail : Bail commercial
- Taxe foncière : 985€ HT
- Provision pour charges : 132€ HT mensuelle
- Dépôt de garantie : 1 mois de loyer HT/HC
- Frais d'acte : 675€ HT
- TVA : oui
Emplacement
17 rue Marx Dormoy 75018 Paris
- Métro :
- La Chapelle (Ligne 2)
Vous souhaitez être informé des nouvelles annonces
immobilières dès leur mise en ligne ?
Vous n’avez pas trouvé de local pour votre activité parmi les annonces en ligne ?
Présentez-nous votre projet






