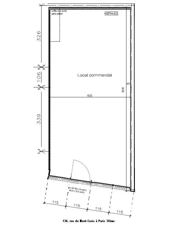
Local commercial 37 m² à louer - 136 rue du Mont Cenis 75018 Paris
Présentation du local à louer - local commercial, atelier
Local commercial avec porte et vitrine sur rue, disposant d'un rideau métallique électrique intérieur, une seule pièce.
Travaux à prévoir (peinture, cloisonnement sanitaires) à la charge du Preneur.
A proximité de la sortie de métro Porte de Clignancourt (ligne 4)
Disponibilité : immédiate
- Activité recherchée :
- Commerce, artisanat, activités médicales
Surfaces
- RDC 37 m²
Caractéristiques techniques du local-
Travaux à la charge du locataire :
Tous les travaux d'aménagement, réfection, embellissements revêtements de sols, murs et plafond, sécurité et fermeture du local, eau (modification éventuelle des canalisations privatives avec sanitaires, lavabo), mise aux normes électriques du local en fonction de la nouvelle activité (tableau, prises diverses, luminaires, cablage, convecteurs électriques, ballon d'eau chaude)... - Pas de conduit d'extraction, local non destiné à la restauration
-
DPE :
En cours
Les informations sur les risques auxquels ce bien est exposé sont disponibles sur le site Géorisques.
Conditions financières et juridiques
- Loyer mensuel : 883€ HT/HC
- Loyer annuel : 10 600€ HT/HC
Paiement trimestriel à échoir
- Type de bail : Bail commercial
- Provision pour charges : 200€ HT trimestrielle
- Dépôt de garantie : 3 mois de loyer HT/HC
- TVA : oui
Emplacement
136 rue du Mont Cenis 75018 Paris
- Métro :
- Porte de Clignancourt
Vous souhaitez être informé des nouvelles annonces
immobilières dès leur mise en ligne ?
Vous n’avez pas trouvé de local pour votre activité parmi les annonces en ligne ?
Présentez-nous votre projet





