Local commercial 34 m² à louer - 92 rue Blomet 75015 Paris
Présentation du local à louer - local commercial
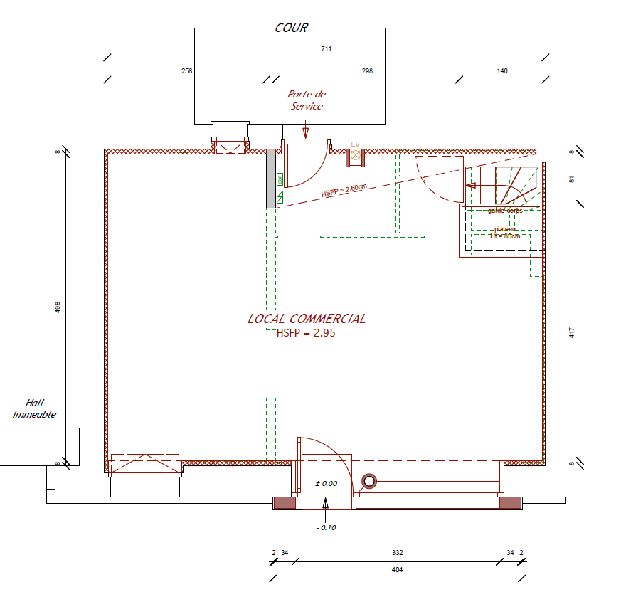
Au cœur du 15ᵉ arrondissement de Paris, au 92 rue Blomet (75015 Paris), local commercial développant une surface de 34 m² en rez-de-chaussée complétée par 18 m² en sous-sol. Situé à proximité immédiate du métro Vaugirard (ligne 12), il bénéficie d’un environnement de quartier vivant et commerçant, propice à l’implantation d’une activité de proximité.
Ce local à usage commercial, sans possibilité d’activité de restauration, sera disponible à compter du 1er juin 2026. Il conviendra parfaitement à une activité de commerce de détail, showroom, services ou activité tertiaire. Le DPE est vierge.
Le loyer annuel s’élève à 21 600 € HT et hors charges.
Disponibilité : 01/06/2026
- Activité recherchée :
- Pas de restauration
Documentation complémentaire
- Capture_d_écran_2026-02-13_150546.png Poids : 43 ko
- Capture_d_écran_2026-02-13_150528.png Poids : 62 ko
Surfaces
- RDC 34 m²
- Sous-sol 18 m²
Caractéristiques techniques du local-
DPE :
vierge
Les informations sur les risques auxquels ce bien est exposé sont disponibles sur le site Géorisques.
Conditions financières et juridiques
- Loyer mensuel : 1 800€ HT/HC
- Loyer annuel : 21 600€ HT/HC
Paiement mensuel à échoir
- Type de bail : Bail commercial
- Taxe foncière : 796€ HT
- Provision pour charges : 164€ HT mensuelle
- Dépôt de garantie : 1 mois de loyer HT/HC
- Frais d'acte : 1 000€ HT
- Honoraires annuels de frais de gestion administrative et de maintenance technique : 1.5 % du loyer annuel HT
- TVA : oui
Emplacement
92 rue Blomet 75015 Paris
- Métro :
- Vaugirard (12)
Vous souhaitez être informé des nouvelles annonces
immobilières dès leur mise en ligne ?
Vous n’avez pas trouvé de local pour votre activité parmi les annonces en ligne ?
Présentez-nous votre projet



