Atelier 96 m² à louer - 35 boulevard Ornano 75018 Paris
Présentation du local à louer - bureau, atelier
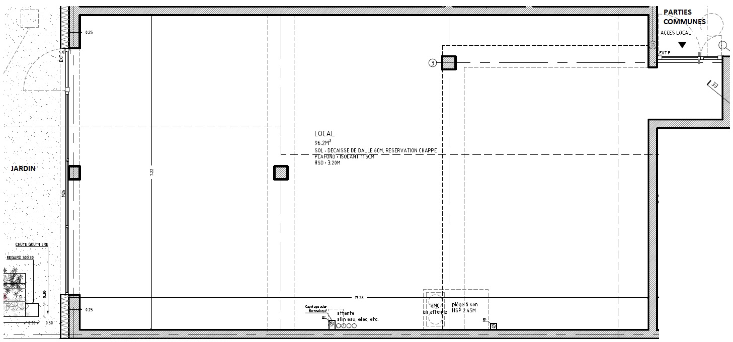
Local de bureau d'environ 96 m² sur cour en bon état d'aménagement, avec un coin kitchenette,
accessible par les parties communes, aux personnes à mobilité réduite
disponible de suite
Disponibilité : immédiate
- Activité recherchée :
- Bureau
- Obligations réglementaires :
- Bureau
Surfaces
- RDC 96 m²
Caractéristiques techniques du local-
Travaux à la charge du locataire :
Tous les travaux d'aménagement, réfection, embellissements revêtements de sols, murs et plafond, sécurité et fermeture du local, eau (modification éventuelle des canalisations privatives avec sanitaires, lavabo), mise aux normes électriques du local en fonction de la nouvelle activité (tableau, prises diverses, luminaires, cablage, convecteurs électriques, ballon d'eau chaude)... - Pas de conduit d'extraction, local non destiné à la restauration
-
DPE :
En cours
Les informations sur les risques auxquels ce bien est exposé sont disponibles sur le site Géorisques.
Conditions financières et juridiques
- Loyer mensuel : 2 165€ HT/HC
- Loyer annuel : 25 980€ HT/HC
Paiement trimestriel à échoir
- Type de bail : Bail commercial
- Taxe foncière : 0€ HT
- Provision pour charges : 488€ HT trimestrielle
- Dépôt de garantie : 3 mois de loyer HT/HC
- TVA : oui
Emplacement
35 boulevard Ornano 75018 Paris
- Métro :
- Simplon (4)
Vous souhaitez être informé des nouvelles annonces
immobilières dès leur mise en ligne ?
Vous n’avez pas trouvé de local pour votre activité parmi les annonces en ligne ?
Présentez-nous votre projet










